可移動吊車
產品介紹
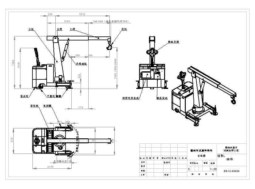
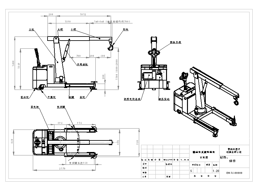
可移動式吊車的吊臂電動伸縮,電動旋轉,適合1T以下物體的起吊和移位;
吊臂上升下降,最低離地600MM,適合起吊貨物本體高度大于600MM的物體;
底腿內寬680,適合小于680寬度的物體包含在腿內,或托盤下方可以插入底腿,方便起吊;
此吊車步行式操作,適合廠區,倉庫車間內,地面平坦的地區操作。
Arm extends, return and rotate electrically, proper for lift and move Max. 1ton capacity material;
Arm Lift up and down, hook min. height to ground is 600mm, proper to catch material above 600mm height;
Outriggers with inner width 680mm, proper to container material narrow than 680mm. Or the straddles could enter pallet to lift the material;
Pedestrian operation, good for use in plant area, warehouse and workshop, places with flat floor;
產品參數
|
型 號 Model |
SDC-A-0530 |
SDC-A-1025 |
SDC-A-1030 |
|
額定起吊 Capacity (kg) |
500 |
1000 |
1000 |
|
起升高度Lifting Height (mm) |
3000 |
2500 |
3000 |
|
蓄 電 池 Battery (V/Ah) |
24/165 |
24/165 |
24/210 |
|
充 電 器 Charger (V/A) |
24/20 |
24/20 |
24/30 |
|
提升泵站Lifting Motor (Kw) |
2.5 |
2.5 |
2.5 |
|
驅動電機Driving Motor (Kw) |
AC1.2 |
AC1.2 |
AC1.2 |
|
旋轉角度 Rotation (°) |
±90° |
±90° |
±90° |
|
950 |
950 |
950 |
|
|
底腿內寬 Outriggers Inner Width (mm) |
680 |
680 |
680 |
|
支撐腿外寬 Straddles Overall Width (mm) |
990 |
990 |
990 |
|
底腿離地Outriggers Ground Clearance (mm) |
200 |
200 |
200 |
|
吊臂伸出離底腿最長 Min. Arm Extending Distance from Outriggers (mm) |
420 |
400 |
350 |
|
車身重量Weight (Kg) |
710 |
730 |
760 |
|
外形尺寸Overall size(mm) L*W*H |
2670*990*1800 |
2900*990*1600 |
2900*990*1800 |
|
通道要求 Turning Aisle (mm) |
3100 |
3100 |
|
|
行走通道Passing Aisle (mm) |
1100 |
1100 |
1100 |
|
驅動輪 Driving wheel (mm) |
1*¢250*80 |
||
|
輔助輪 Auxiliary Wheels (mm) |
2*¢150*50 |
||
|
前輪Front Wheels (mm) |
2*¢150*75 |
||
|
爬 坡 度 Climbing slope (%) |
4/6 |
||
|
行駛速度(滿載/空載)Travel Speed (km/h) |
4/6 Loaded/Unloaded |
||
|
提升速度(滿載/空載) Lifting Speed (mm/s) |
45/50 Loaded/Unloaded |
||
|
下降速度(滿載/空載)Falling Speed (mm/s) |
45/40 Loaded/Unloaded |
||
|
制動方式Service Brake |
電磁制動Electromagnetic braking |
||
產品展示
工程圖紙
售后服務
1、 泰州惠澤機械有限公司專業制造的移動吊車整車保修一年.
2、 蓄電池保修半年(一定要按蓄電池使用說明書使用及保養,注意增加鉛酸水,否則嚴重虧電使用不保修)
3、 易損件為前輪后輪和驅動輪輪轂,正常磨損不在保修范圍內,如脫膠在保修范圍內
4、 泰州惠澤機械可移動吊車鋼結構焊接斷焊或斷裂一年內正常保修(超載導致變形,變形不保修)
5、 電控系統前進\后退確保正常操作,一年內正常保修
6、 提升系統確保上升\下降正常,不自然沉降,一年內正常保修.
7、 惠澤液壓缸確保不漏油,與鏈條接軌正常,一年內正常保修.
8、 充電器充不上電一年內正常保修(請注意一定要及時充電,不能在虧電的情況車繼續使用車輛)
9、 保修期內有質量問題供應商上門維修,自接到電話后2小時內做出響應,經雙方協商,采購方能自行解決的,供應商可郵寄配件給采購方自行更換,否則供應商3天內上門進行維修服務.
10、吊鉤吊臂不能正常工作在保修范圍內,鋼絲繩屬易損件(陸個月內保修)
采購:可移動吊車
- *聯系人:
- *手機:
- 公司名稱:
- 郵箱:
- *采購意向:
-
*驗證碼:
跟此產品相關的產品 / Related Products

- 電動吊車(吊臂不旋轉),移動式液壓吊機
- 電動吊車引進德國先進技術,吊臂不旋轉,整機旋轉; 無底腿式電動吊車由于能跨越機床等障礙物起吊裝卸,適用場所更廣泛; 站駕式隨機行走,無須步行,操作人員更輕松.吊臂可電動伸縮600MM,更利于起吊工件; 美國科蒂斯電控,無級調速行駛,24V蓄電池動力,夜晚充電,白天使用5-8小時; 電動吊車無底腿式,主要的用處在于吊裝設備、搶險、起重機械、救援 。

- 帶鋼絲繩自行走吊車
- 1.帶鋼絲繩自行走吊車的吊鉤可降至地面,特別適合工件小的本體高度低的工件的起吊,裝卸.此款吊車采用國外先進技術設計生產. 2.帶鋼絲繩自行走吊車液壓絞車控制提升,收鉤放繩,大功率蓄電池鉛酸牽引型,經久耐用.無需接電源使用,移動方便,并可吊重行走. 3.huize-lift牌帶鋼絲繩自行走吊車特小轉彎半徑,取代了大型吊車倉庫車間的占地面積大,不方便的弊端. 4.huize-lift牌帶鋼絲繩移動式自行走吊車可配合車間的行車使用,適合車間大,使用頻率高,是行車一兩臺不夠用的最好的輔助工具. 泰州惠澤廠制造的各式電動吊車廣泛用于公司、工廠、港口、車間、工地等地的起吊搬運機械。電動液壓吊車的用處在與吊裝設備、搶險、起重、機械、救援 。

- 0.4T2.5M電動搬運車式自行走吊車
- 1.huize-lift牌電動搬運車式自行走吊車采用國外先進技術設計生產. 2.自行走吊車?大功率蓄電池鉛酸牽引型,經久耐用.無需接電源使用,移動方便,并可吊重行走. 3.huize-lift牌?自行走吊車?特小轉彎半徑,取代了大型吊車倉庫車間的占地面積大,不方便的弊端. 4.移動式huize-lift自行走吊車可配合車間的行車使用,適合車間大,使用頻率高,是行車一兩臺不夠用的最好的輔助工具.





